注文住宅の建築実例

「GALVA × STEEL」 

GALVA × STEEL

詳細DATA

カテゴリ

2階リビング

エリア

神奈川県茅ヶ崎市

家族構成

ご夫婦+お子様3人

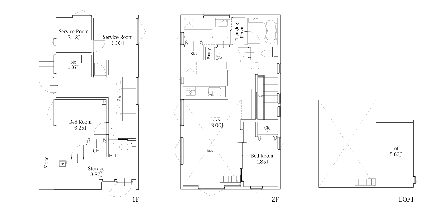
間取り

2LDK+2S+LOFT

建物面積

111.99㎡(33.88坪)

敷地面積

108.51㎡(32.82坪)

類似した注文住宅の写真ギャラリー